Upside Towers

Upside Towers

Сверхквартал для впечатляющей жизни

Upside Towers

15 минут до Красной площади

от 22 м2

площадь

2 кв. 2027

завершение

15000000

стоимость

Локация, в которую влюбляются: рядом метро, тишина и парк

Жилой комплекс находится в зелёной части Бутырского района — одного из самых уютных и перспективных округов Москвы. Здесь вы чувствуете себя в городе, но без его привычной суеты: под окнами — Гончаровский парк для прогулок и отдыха, а всего в 5 минутах пешком — станция метро «Бутырская», откуда за считаные минуты можно добраться до центра. Уютные улицы, развитая инфраструктура, школы, магазины, спорт и природа — локация идеально подходит как для семейной жизни, так и для аренды и инвестиций. Это тот редкий случай, когда вам не придётся выбирать между комфортом и выгодой.

Город будущего уже здесь: архитектура, вдохновлённая горами

Пять небоскрёбов с выразительной асимметрией фасадов формируют уникальный архитектурный силуэт, вдохновлённый величественными горными хребтами. Проект от бюро КАМЕN — это не просто здания, а воплощение природной силы и гармонии в урбанистическом контексте. Алюминиевые панели и эмалированное стекло отсылают к сиянию заснеженных вершин, а природные фактуры и цвета создают визуальный баланс между современным обликом и философией природы. Этот архитектурный стиль делает комплекс узнаваемым, статусным и по-настоящему футуристичным — город будущего, в котором можно жить уже сегодня.

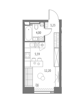
ТИПОВЫЕ ПЛАНИРОВКИ КВАРТИР

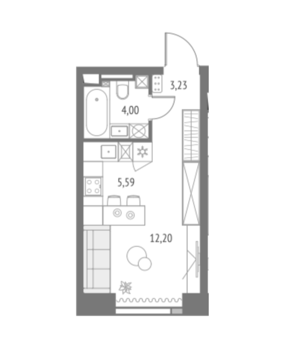
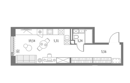
Студии

Площадь от 22.7 м2

Стоимость от 15.500.000 руб

В проекте представлены студии с рациональной планировкой от 23,9 до 32,4 м² — идеальный вариант для тех, кто ценит функциональность, стиль и удобство. Пространство зонировано так, чтобы создать комфортную жилую среду: предусмотрено место под полноценную кухню, зону отдыха и спальное пространство. Высокие потолки до 3,4 м и панорамные окна делают квартиру визуально просторнее и наполняют её светом. Отличный вариант как для первого жилья, так и для инвестиций: такие форматы стабильно востребованы на рынке аренды.

Пожалуйста укажите телефон
Согласен с политикой конфиденциальности
Необходимо согласие
1-комнатные

Площадь от 37 м2

Стоимость от 21.000.000 руб

Твоя тишина над городом — однушка, в которую влюбляешься с порога Просторная однокомнатная квартира с панорамными окнами и эргономичной планировкой — это не просто жильё, а место, где хочется оставаться. Светлая кухня-гостиная отлично подойдёт как для уютных вечеров вдвоём, так и для встреч с друзьями. В отдельной спальне — идеальные условия для отдыха и восстановления. А из окон открывается вдохновляющий вид на город, парки и закаты. Здесь чувствуешь: наконец-то дома.

Пожалуйста укажите телефон
Согласен с политикой конфиденциальности
Необходимо согласие
2-комнантные

Площадь от 58 м2

Стоимость от 29.000.000 руб

Больше, чем квартира: идеальная двушка для жизни и уюта Эта двухкомнатная квартира — находка для тех, кто ценит пространство, свет и функциональность. Уютная спальня для отдыха, большая кухня-гостиная для жизни, наполненной моментами: утренний кофе у окна, ужины с близкими, вечерние фильмы. В квартире удобно зонировано всё: отдельная гардеробная, санузел, балкон — каждая деталь продумана. А снаружи — тишина зелёных парков, метро в пяти минутах и городская энергия под рукой.

Пожалуйста укажите телефон
Согласен с политикой конфиденциальности
Необходимо согласие
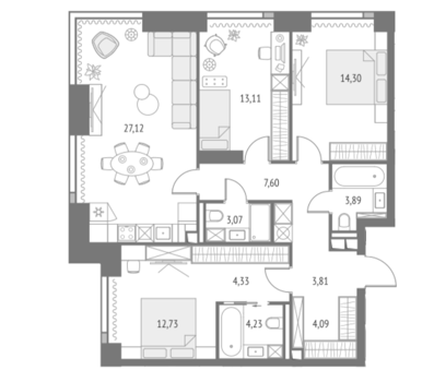
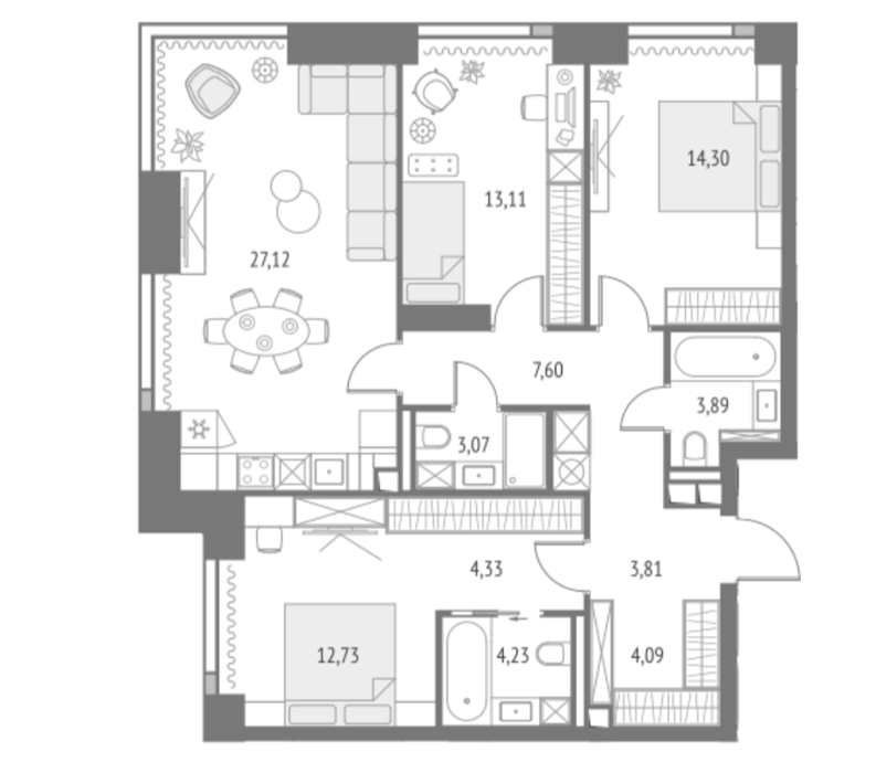
3-комнатные

Площадь от 85 м2

Стоимость от 39.400.000 руб

Трёхкомнатная мечта: пространство, в которое хочется возвращаться Эта квартира — идеальный выбор для семьи, которая хочет всё и сразу: простора, уюта и уединения. Большая кухня-гостиная — сердце дома, где собираются вместе. Три изолированные комнаты легко трансформируются в спальню, детскую и кабинет. Продуманная планировка — минимум «пустых» метров, максимум пользы. Высокие потолки, панорамные окна, ощущение света и свободы. Живите в окружении природы и инфраструктуры: парк, метро, школы и магазины — всё рядом. Здесь будет не просто удобно — будет по-настоящему хорошо.

Пожалуйста укажите телефон
Согласен с политикой конфиденциальности
Необходимо согласие

Upside Towers это

Сверхквартал возводится в перспективном и быстроразвивающемся Бутырском районе Москвы, в 15 минут от Цветного бульвара. В рамках проекта комплексного развития территории «Индустриальные кварталы» здесь появится свыше 162 тыс. кв. метров общественно-деловой недвижимости, физкультурно-оздоровительный комплекс, скалолазный центр, гостиница, школы и детские сады.

Технологии и инновации легли в основу развитой цифровой инфраструктуры сверхквартала и включают в себя дистанционное управление общественными пространствами и системой безопасности. Современные системы кондиционирования и пятиступенчатой очистки воды позволят добиваться чистоты воздуха и воды наравне с высокогорными вершинами.

Футуристичные и монументальные башни сверхкваратала Upside Towers станут новой урбанистической доминантой всего района. Элегантная и грациозная эстетика архитектуры домов нашла свое отражение не только в очертании зданий, но и в стеклянных фасадах, отражающихся на солнце, как заснеженные шапки горных вершин.



Стильный, современный дизайн внутреннего ландшафта и лобби башен подчеркивает природную направленность архитектуры проекта. Лаконичные и спокойные цвета отделки интерьеров – как логичное продолжение элегантного стиля и естественной направленности всего сверхкваратла.

Отличительная особенность сверхквартала – обширная зеленая территория площадью 7 га включает: приватные зеленые дворы, природный комплекс, прогулочный бульвар, ландшафтный парк 2,5 га с сенсорным садом и многофункциональными игровыми и спортивными площадками.

Создавая инфраструктуру Upside Towers, мы спроектировали уникальное пространство для комфортного отдыха и новых знакомств, для деловых встреч и непрерывного саморазвития площадью более 2000 кв. м, которое будет доступно только для жителей.

Здесь разместятся: Lounge-гостиная c камином и роялем для спокойного и расслабленного отдыха, многофункциональная детская игровая зона с горками и сухим бассейном для малышей, playroom для подростков, просторные лектории, коворкинг и переговорные, домашний кинотеатр, всесезонное барбекю-патио, Sky spa&relax.

На территории квартала строится собственный образовательный кластер: государственная школа будущего с многофункциональными пространствами, лабораториями и IT полигоном спроектирована по новым стандартам, в концепции «Цифровая образовательная среда» и рассчитана на 325 учеников. Государственный детский сад на 125 детей с современной архитектурой и наполнением станет неотъемлемой частью образовательного кластера.

На территории квартала разместится 15 000 м² коммерческих объектов, включая: фитнес и spa ~1400 м², многопрофильный медицинский центр ~1500 м², бьюти-коворкинг, гастромаркет, фермерские лавки и продуктовые магазины, кафе и рестораны с открытыми террасами, винотеки, аптеки и лаборатории, службы сервиса и доставки.

Вершины всегда служат ориентиром для формирования пространства вокруг. Upside Towers строится в рамках радикального трансформирования территории Огородного проезда, это будущий landmark непрерывно развивающегося Бутырского района, который готов стать новым деловым районом Москвы.

В рамках программы «Индустриальные кварталы» комплексного развития территории здесь будут построены современные образовательные и спортивные учреждения, торговые центры, кафе, банки и различные общественно-деловые пространства.

ОНЛАЙН КОНСУЛЬТАЦИЯ

получите больше информации о проекте
и задайте свои вопросы

НЕ НАШЛИ ПОДХОДЯЩЕЕ?

Укажите параметры недвижимости и мы подберем варианты в течение дня бесплатно

Пожалуйста укажите телефон
Согласен с политикой конфиденциальности
Необходимо согласие
Написать в мессенджер